
Casaitaly.it® - La scelta giusta per il Suo immobile
Casaitaly.it® - The right choice for your property
Casaitaly.it® - Die richtige Wahl fuer Ihre Immobilie

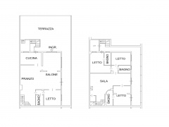
In the exclusive Casale di San Nicola setting, elegant portion of villa with swimming pool in ample garden consisting on the upper floor of double living room with dining area, live-in kitchen with access to the terrace, bedroom with ensuite bathroom.
The ground floor with access to the garden with swimming pool consists of taverna with fireplace and three bedrooms with ensuite bathrooms.
The villa is in very good condition, ready to move in.
Double garage with annexed storage room/laundry.
Excellent location with southern exposure with views of green spaces that offer total relaxation and privacy.
