
Casaitaly.it® - La scelta giusta per il Suo immobile
Casaitaly.it® - The right choice for your property
Casaitaly.it® - Die richtige Wahl fuer Ihre Immobilie

Available 01/08/2026.
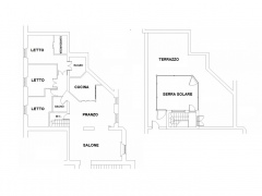
San Giovanni, Re di Roma, splendid penthouse apartment with rooftop terrace with veranda and open air kitchen consisting of entrance, double living room with dining area, furnished kitchen with sliding glass door, 3 bedrooms, 3 bathrooms, storage room. The apartment is equipped with autonomous heating, A/C, home cinema with ceiling screen and alarm system. Garage within walking distance included.
The apartment will be rented out unfurnished with equipped kitchen.
