
Casaitaly.it® - La scelta giusta per il Suo immobile
Casaitaly.it® - The right choice for your property
Casaitaly.it® - Die richtige Wahl fuer Ihre Immobilie

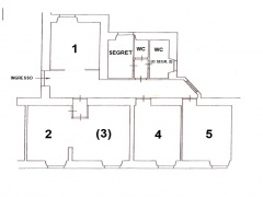
Re di Roma, office space on the first floor to rent, consisting of entrance hall, 5 rooms, 1 smaller room, 2 bathrooms, A/C.
Income references and bank guarantee required.
